
ISSUED: 07-27-11 SHEET NO: 125-9545-1Peerless Industries, Inc.
2300 White Oak Circle. Aurora, IL 60502
800 865-2112 Fax 800 359-6500
www.peerlessmounts.com
page 2 of 2
© 2011 Peerless Industries, Inc. All rights reserved.
Peerless is a registered trademark of Peerless Industries, Inc.
All other brand and product names are trademarks or registered trademarks of their respective owners.
TECHNICAL DATA SHEET
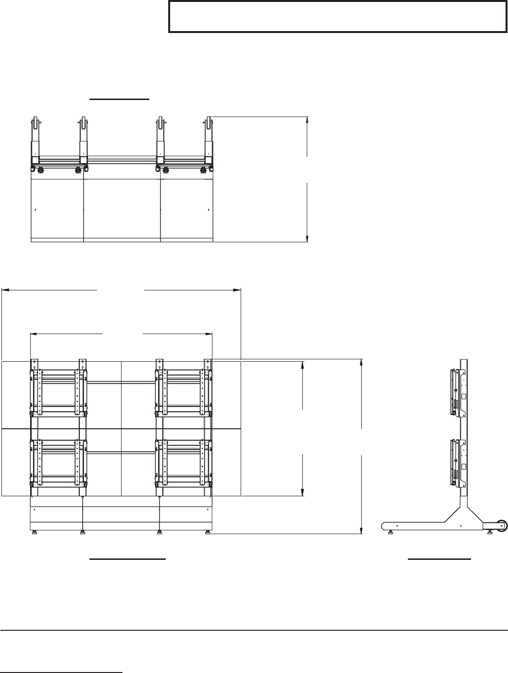
MODELS: PN-PS220
ALL DIMENSIONS: inch [mm]
53.00"
(1346mm)
TOP VIEW
105.19"
(2672mm)
76.43"
(1941mm)
59.41"
(1509mm)
73.91"
(1877mm)
FRONT VIEW SIDE VIEW
Commenti su questo manuale