
E-2
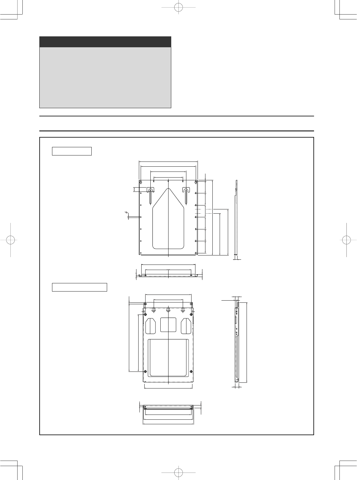
Outside dimension drawing
Please strictly observe the following.
Special skill is required to install the LCD color
TV, so please have it installed by a contractor
specializing in such installation. The customer
should not attempt to install the TV. Sharp shall
not be responsible for improper installation or
any accidents, damage, or injury resulting from
improper installation.
To the contractor
• To ensure the safety of the customer, conduct the
design so that the strength of the installation
location is sufficiently strong to support the weight of
the LCD color TV and the wall-mount bracket.
• Be sure to use two or more people to conduct the
work.
• The wall installation screws for the wall-mount
brackets are not included with the fixtures. Select
off-the-shelf screws that match the wall.
528
220 220
22
518
280
560
440
14
26
343
280
18
115 11
40
115115
-
A
-
-
B
-
A
B
115115115
718
440
478
10
23
468
460
650 15
766.8
35
558
9mm
12
384
429
Unit: mm
Wall-mount bracket
(Mark A: At a height at the center of the
LC-65GE1 screen)
Base bracket
Commenti su questo manuale