Many
Manuals
search
Categorie
Marchi
Home
Sharp
Microonde
R-240B
Specifiche
Sharp R-240B Specifiche Pagina 12
Scaricare
Condividere
Condivisione
Aggiungi ai miei manuali
Stampa
Pagina
/
16
Indice
SEGNALIBRI
Valutato
.
/ 5. Basato su
recensioni clienti
1
2
3
4
5
6
7
8
9
10
11
12
13
14
15
16
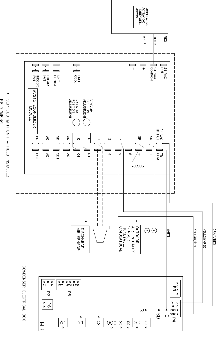
SINGLE STA
GE
ECONOMIZE
R WIRING SCHEM
ATICS
1
2
...
7
8
9
10
11
12
13
14
15
16
MODELS DSH/DSV
1
Form 145.11-IOM1 (412)
1
IMPORTANT!
2
TABLE OF CONTENTS
3
1. INSTALLATION
5
CONNECTION
8
AIRSIDE ECONOMIZER TO UNIT
8
Installed Harness
9
VERTICAL ECONOMIZER
10
HORIZONTAL ECONOMIZER
11
6. SEQUENCE OF OPERATION
14
Commenti su questo manuale
Nessun commento
Publish
Prodotti e manuali riguardandi Microonde Sharp R-240B
Microonde Sharp R-959(SL)M-AA Specifiche
(103 pagine)
Microonde Sharp R-326FS Specifiche
(24 pagine)
Microonde Sharp R-6280 Manuale delle Istruzioni
(41 pagine)
Microonde Sharp KB-6025M Manuale Utente
(4 pagine)
Microonde Sharp R-309YW Guida di Installazione
(30 pagine)
Microonde Sharp R-409HK Specifiche
(24 pagine)
Microonde Sharp R-426HQ Manuale Utente
(24 pagine)
Microonde Sharp R-86STM-A Specifiche
(72 pagine)
Microonde Sharp R-23AM Specifiche
(28 pagine)
Microonde Sharp R-982STM Specifiche
(22 pagine)
Microonde Sharp R-408JW Specifiche
(24 pagine)
Microonde Sharp R-21AT Specifiche
(36 pagine)
Microonde Sharp R-310BK Manuale dell'Operatore
(53 pagine)
Microonde Sharp R-880B Manuale Utente
(40 pagine)
Microonde Sharp R-310H Manuale Utente
(24 pagine)
Microonde Sharp R-310BW Specifiche
(24 pagine)
Microonde Sharp R-297F Specifiche
(43 pagine)
Microonde Sharp R-508F Specifiche
(33 pagine)
Microonde Sharp KB-6025M Manuale di Installazione
(24 pagine)
Microonde Sharp R-892M Specifiche
(73 pagine)
Stampa documento
Stampa pagina 12
Commenti su questo manuale