
8 7 6 5 4
3
2 1
A
B
C
D
12345678
D
C
B
A
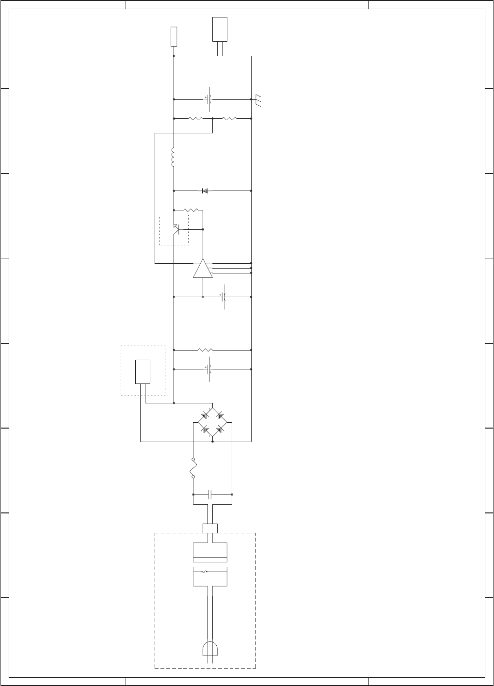
+24V
L1
180uH
HEAT SINK
Q1
KTD998
2
1
CN17
CAR BT CN
7. PS PWB
POWER UNIT
1
2
CN1
PS CN
4
1
2
3
BD1
CP301
R1
18K
C2
4700UF/50V
F1
T2.5AL 250V
3.15A 125V
C1
M0.033u
1
5
7
3
4
2
IC1
LM2574HVN
R2
10
6,8PIN:NC
R3
22KF
R4
1.2KF
D2
PS156R
C3
22UF/50v
+24V
GND
2
1
TO MAIN PWB
C4
2200uF/50V
1/1
Not used
8 – 17
Commenti su questo manuale