
SR84 / SR85, CH33
(E) 19
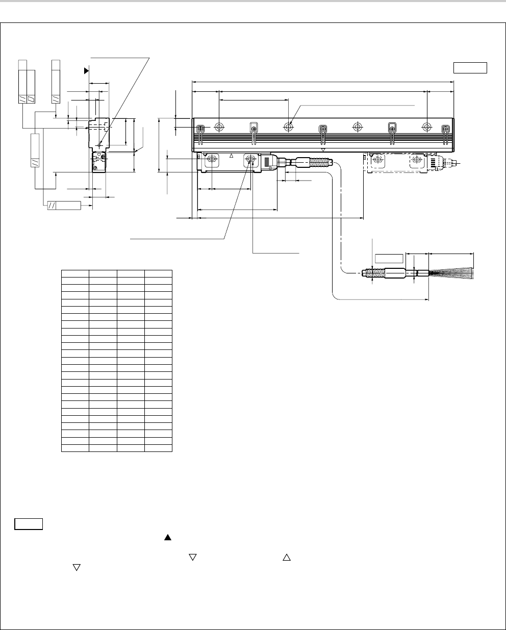
6. Dimensional Diagrams
Air purge hole
(M5: Both ends)
32
30
28
26
24
22
20
19
18
17
16
15
14
13
12
11
10
9
8
7
6
5
4
3
n
2300
2100
1900
1800
1700
1600
1500
1400
1300
1200
1100
1000
900
800
600
700
500
400
300
200
3100
2900
2700
2500
3178
2978
2778
2578
2378
2178
1978
1878
1778
1578
1678
1378
1478
1278
1178
1078
978
878
778
478
678
578
278
378
L2
L1ML
3040
2840
2640
2440
2240
2040
1840
1740
1640
1540
1440
1340
1240
1140
1040
940
840
740
640
540
440
340
240
140
65
(ø8)
100
CH33
(ø11.3)
CL = 3 m, 5 m, 10 m, 15 m
ML
115
21
56
7.5
19.5
78
48.5
19
39
28.5
0.1
5
±0.2
0.05
0.1
0.05
MG
0.1
MG
9.2
14.5
3.5
(9)
29
1
±0.3
100
12.5
39
L2 = (100
±0.2
) ✕ (n–1)
100
±0.2
L1 = ML + 138
(39)
SR84/85
Unit: mm
2 ✕ ø4.5 ✕ 8.5
(mounting screws M4 ✕ 20)
Hexagonal
countersunk
depth 5
n ✕ ø7, ø11 countersunk depth 6.5
(mounting screws M6 ✕ 35)
ML : Measuring length
CL : Cable length
MG : Machine guide
Notes
• The installation surface is indicated by surface.
• The screws indicated in the drawing are supplied as accessories.
• The reference point signal is output when the mark on the scale and mark on the slider are nearly aligned.
There are no mark for multi-point and reference mark.
• The scale will be damaged if the slider moved outside the measuring length (ML). It is recommended that the
machine movable length (stroke) be set at least 10 mm inward from each end of the measuring length (ML).
Commenti su questo manuale