
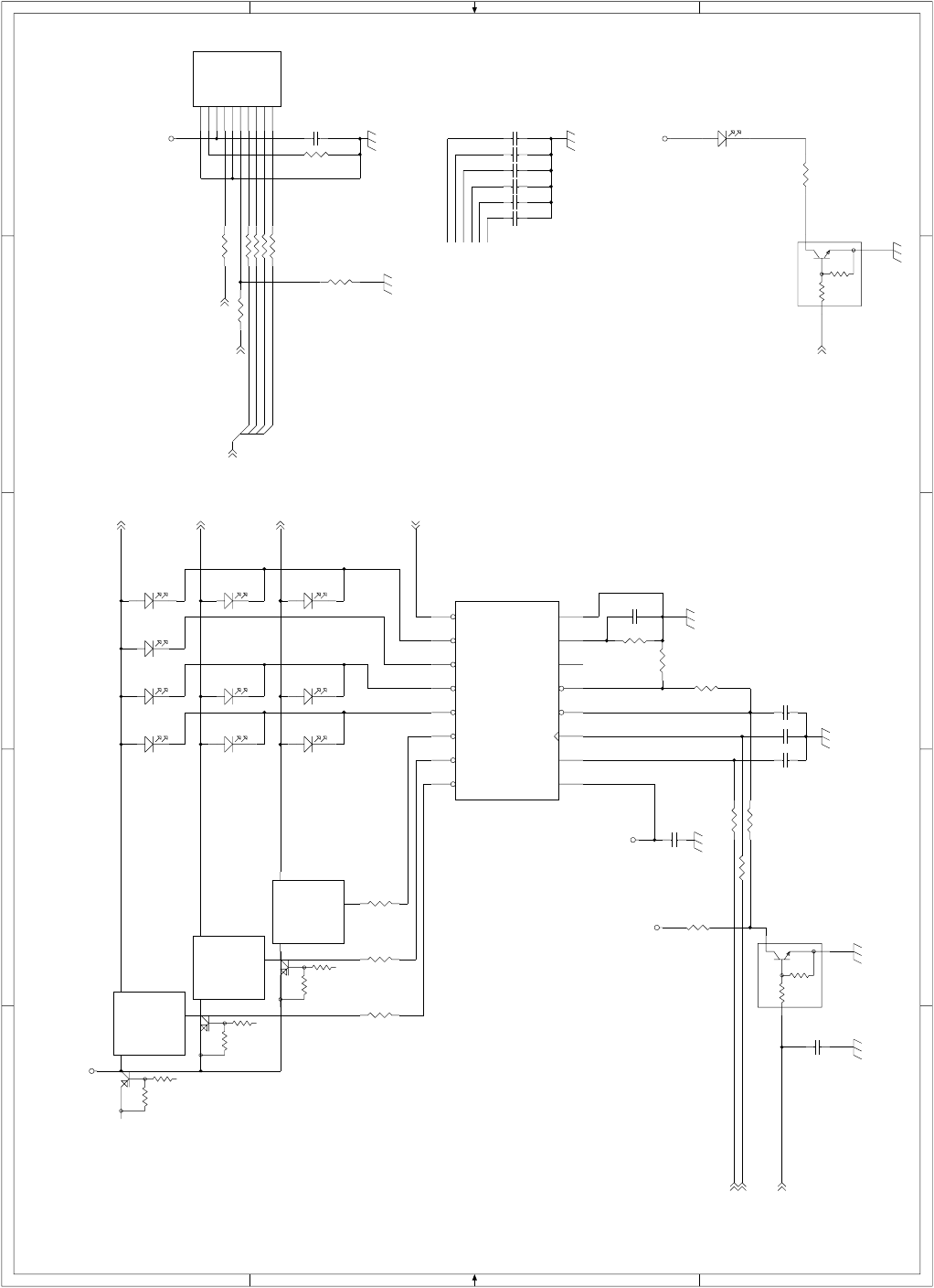
AR-168N/168L CIRCUIT DIAGRAM 14 - 26
2. OPERATION PWB
OPERATION PWB (LED/LCD Section)
C332
100p
R333 100J
R334 100J
PML
LED311
R326
0J
C331
100p
Q305
KRA225S
3
2
1
C327
100p
C328
100p
C333
0.1u
READY
LED310
Q301
KRC106S
1
2
3
C305
1000p
R331 100J
C329
100p
C330
100p
IC304
TB62725AF
/OUT2
7
/OUT3
8
/OUT4
9
/OUT5
10
/OUT6
11
/OUT1
6
/OUT0
5
VCC
16
/ENABLE
13
/LATCH
4
S-IN
2
CLOCK
3
S-OUT
14
GND
1
/OUT7
12
R-EXT
15
R306
OPEN
R302 100J
PRINT
LED303
C322
0.1u
R325
0J
R328
10kJ
R327
820J
C307
open
R301 470J
R329 100J
SPON
LED308
R304 100J
1CAS
LED306
Q302
KRC106S
1
2
3
R332 100J
C308
Open
IC301
GPM181C0
GND
10
V5
9
VDD
8
RS
7
R/W
6
E
5
DB4
4
DB5
3
DB6
2
DB7
1
R324
0J
2CAS
LED305
Q303
KRA225S
3
2
1
R303 100J
COPY
LED304
ALM
LED307
C323
open
FAX
LED301
Q304
KRA225S
3
2
1
MB
LED309
R330 100J
R335
560J
C306
1000p
SCAN
LED302
R305
0J
R323
10KJ
LCDRS#
LCDDB7#
LCDDB4#
LCDDB6#
LCDRS#
LCDE#
LCDE#
LCDDB7#
LCDDB4#
LCDDB6#
LCDDB5#
LCDDB6
LCDDB7
LCDDB4
LCDDB5#
LCDDB5
3.3V
5VEN
3.3V
3.3V
5V
PSL
LED_V2
OP-CLK
OP-DATA
OP-LATCH
LED_V3
LED_V1
DATA1
LCDE
LCDRS
LCDDB[7..4]
Pin Holes x 10
To L C D
=(1.15/820)x14.9=20.9mA
Iout=(1.15/Rext)x14.9 [A]
1/3
A
A
B
B
C
C
D
D
E
E
4 4
3 3
2 2
1 1
14_CIRCUTDIAGRAM.fm 26 ページ 2005年11月18日 金曜日 午後7時21分
Commenti su questo manuale