
4 Replacement Procedures 4.23 Fluorescent Lamp
4-76 [CONFIDENTIAL] Satellite A50S/TECRA A3X Maintenance Manual (960-534)
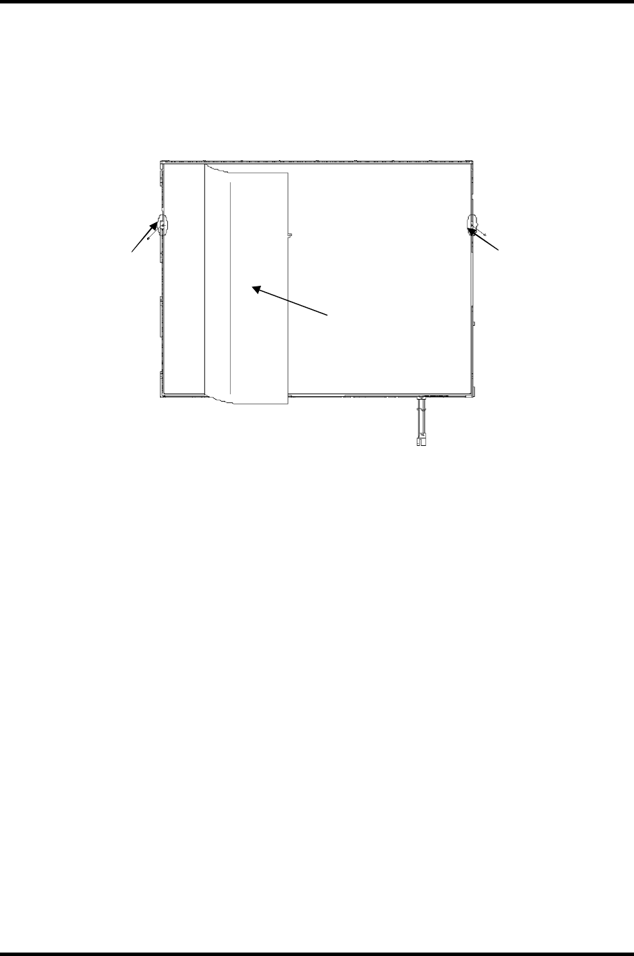
6. Remove the sheets and clips.
1) Remove the two clips fixing the sheets.
2) Remove the sheets (protection sheet, prism sheet (L, U), diffusion sheet, LGP
and reflection sheet).
Figure 4-58 Replacing 15.0 Inch Samsung fluorescent lamp (XGA) (6)
Commenti su questo manuale