
4 Replacement Procedures 4.23 Fluorescent Lamp
4-88 [CONFIDENTIAL] Satellite A50S/TECRA A3X Maintenance Manual (960-534)
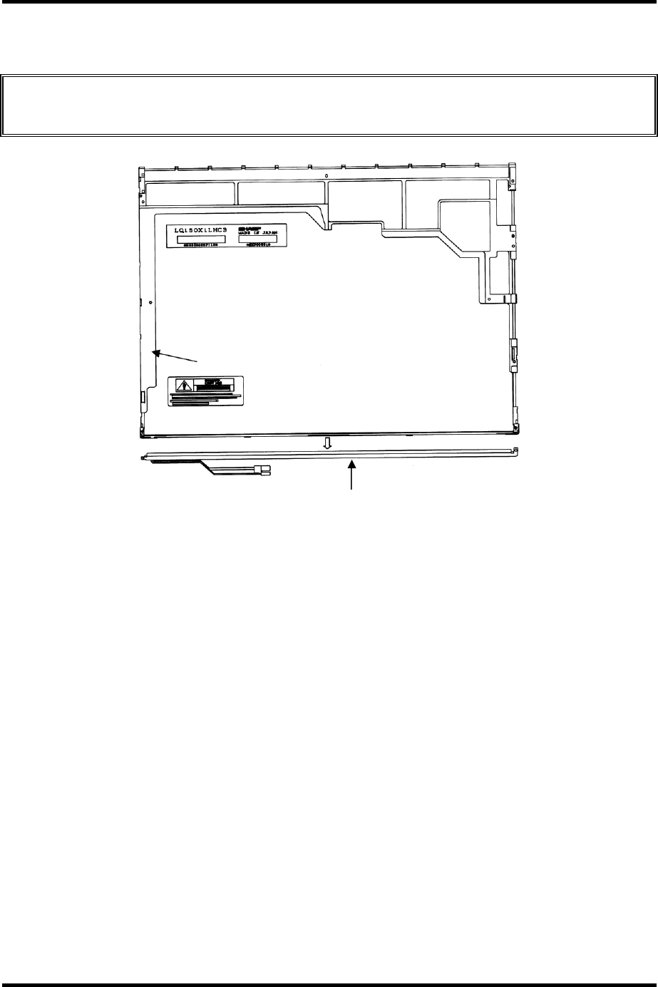
9. Turn the backlight unit face down and remove the lamp unit (R) from the P-chassis.
CAUTION: When removing the lamp unit, be careful not to break the lamp, or bend the
reflection sheet.
Figure 4-71 Replacing 15.0 Inch Sharp fluorescent lamp (XGA) (10)
Commenti su questo manuale